Mehr anzeigen zum Thema Beschreibung
Beschreibung
Im bester Brunner Lage gelegen, imponiert diese zeitlose Einfamilienvilla mit einer Gesamtnutzfläche von mehr als 400m2!
Großzügige Vorräume, edle Fußböden aber auch die gesamte Raumaufteilung widerspiegeln das ausgewogene Gesamtbild dieses attraktiven Hauses. Dass Außenpool mit Überdachung fügt sich architektonisch ebenso unaufdringlich in den ostweistseitigen Garten ein, wie die römischen Säulen, welche die Terrassen wie Arkaden wirken lassen. Das angenehme Ambiente findet man aber auch in den Innenräumen dieses großzügigen Hauses wieder. Unterschiede im Niveau von Wohn- und Essbereich, ein stillvoll geschwungener Treppenaufgang sowie fünf Wohnräume und ein Bad auf jeder Ebene runden das Angebot des gediegenen Domizils ab. Selbst in der Kellerebene mit einem Wellnessbereich, Sauna und Weinkeller mit Gewölbe sowie einem zusätzlichen großen Hobby/Wohnraum fühlt man sich sofort zuhause angekommen. Hinzu kommt eine Garage für zwei Autos inkl. direktem Durchgang in den Garten.
Die Geschossflächen teilen sich wie folgt auf:
Erdgeschoß:
Eß-Wohnzimmer 57,90 m², Küche 18,73 m², Zimmer 10,53 m², Duschbad und WC 6 m²,
Vorzimmer 17,84 m², Doppelgarage 40m², Terrasse 76 m²
1. Stock:
1 Schlafzimmer 18,42 m² , Schrankraum 7,68 m², Badezimmer 10 m², 1 Zimmer 17,44 m² und 1 Zimmer 12,05 m², Galerie 17,90 m², Balkon 4,60 m², Terrasse 45m².
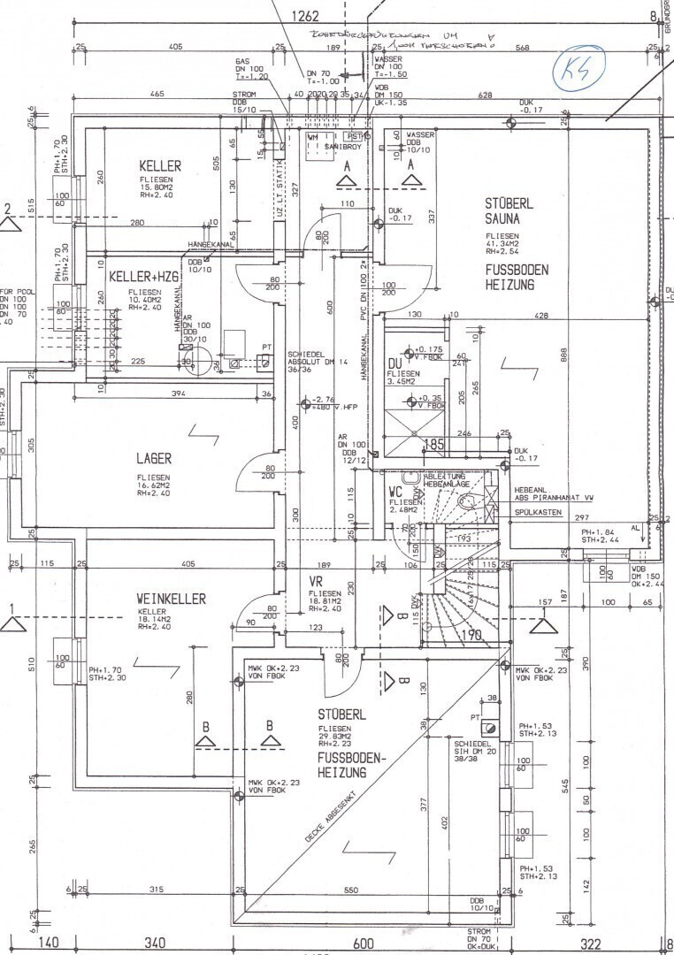
Keller:
Sauna Stüberl 41 m², Dusche und WC, Weinkeller 18 m² klimatisiert, Weinstüberl 29,83 m², Lagerraum 16,62 m², Kellerraum 15,80 m², Heizraum 10,40 m².
Gerne stelle ich Ihnen diese Villa bei einem persönlichen Besichtigungstermin im Detail vor und freue mich auf Ihre Anfrage.
„Ihr Weg zum besten Immobilienkredit – vergleichen, sparen, finanzieren. Jetzt anfragen bei unserem Finanzierungspartner Alexander Schulze unter +4369917260427 oder alexander.schulze@investnest.at.“
Jetzt Wohnkredit sichern
Großzügige Vorräume, edle Fußböden aber auch die gesamte Raumaufteilung widerspiegeln das ausgewogene Gesamtbild dieses attraktiven Hauses. Dass Außenpool mit Überdachung fügt sich architektonisch ebenso unaufdringlich in den ostweistseitigen Garten ein, wie die römischen Säulen, welche die Terrassen wie Arkaden wirken lassen. Das angenehme Ambiente findet man aber auch in den Innenräumen dieses großzügigen Hauses wieder. Unterschiede im Niveau von Wohn- und Essbereich, ein stillvoll geschwungener Treppenaufgang sowie fünf Wohnräume und ein Bad auf jeder Ebene runden das Angebot des gediegenen Domizils ab. Selbst in der Kellerebene mit einem Wellnessbereich, Sauna und Weinkeller mit Gewölbe sowie einem zusätzlichen großen Hobby/Wohnraum fühlt man sich sofort zuhause angekommen. Hinzu kommt eine Garage für zwei Autos inkl. direktem Durchgang in den Garten.
Die Geschossflächen teilen sich wie folgt auf:
Erdgeschoß:
Eß-Wohnzimmer 57,90 m², Küche 18,73 m², Zimmer 10,53 m², Duschbad und WC 6 m²,
Vorzimmer 17,84 m², Doppelgarage 40m², Terrasse 76 m²
1. Stock:
1 Schlafzimmer 18,42 m² , Schrankraum 7,68 m², Badezimmer 10 m², 1 Zimmer 17,44 m² und 1 Zimmer 12,05 m², Galerie 17,90 m², Balkon 4,60 m², Terrasse 45m².
Keller:
Sauna Stüberl 41 m², Dusche und WC, Weinkeller 18 m² klimatisiert, Weinstüberl 29,83 m², Lagerraum 16,62 m², Kellerraum 15,80 m², Heizraum 10,40 m².
Gerne stelle ich Ihnen diese Villa bei einem persönlichen Besichtigungstermin im Detail vor und freue mich auf Ihre Anfrage.
„Ihr Weg zum besten Immobilienkredit – vergleichen, sparen, finanzieren. Jetzt anfragen bei unserem Finanzierungspartner Alexander Schulze unter +4369917260427 oder alexander.schulze@investnest.at.“
Jetzt Wohnkredit sichern
Ihr Ansprechpartner
Herr Florian Heckl, MBA
- Tel.:
- +43 676 48 22 670
f.heckl@friends-immobilien.at
Friends Immobilien GmbH
Wiener Straße 127
2352 Gumpoldskirchen