Zur Navigation wechseln Zum Inhalt wechseln Zum Footer wechseln
Immobilienbild

Mehrfamilienhaus mit 17 kw Solaranlage

ImmoNr.
1870/310585
Objektart
Haus
Vermarktungsart
Kauf
Wohnfläche
197 m²
Nutzfläche
399 m²
Grundstücksgröße
703 m²
Anzahl Zimmer
9
Anzahl Badezimmer
2
Balkon
Nein
Terrasse
Nein
Barrierefrei
Nein
Befeuerung
Gas, Solar, Pellets
Kaufpreis
699.000,00 €
Provision
3% des Kaufpreises zzgl. 20% USt
Loggia
Nein
Mehr anzeigen zum Thema Beschreibung

Beschreibung

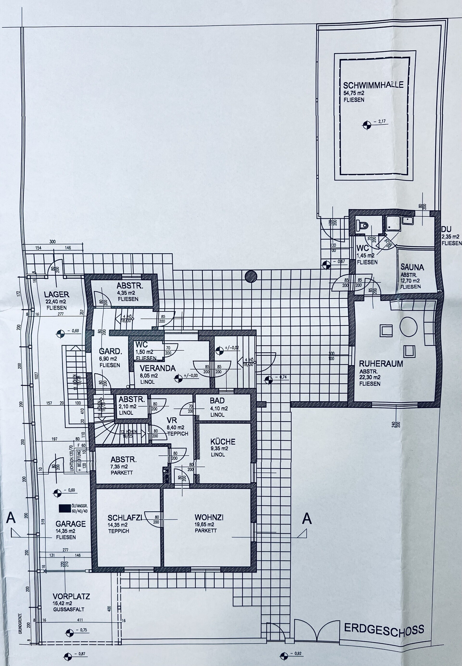
Top Haus mit Hallenbad Sauna, Strom aus Eigenerzeugung

Zum Verkauf gelangt ein großes Mehrfamilienhaus, derzeit auf 2 Wohneinheiten getrennt, mit modernster Technik und 17 kw Solaranlage und 20 kw Speicher.

Die Liegenschaft besitz außerdem ein eigenes Hallenbad mit Sauna und Ruheraum, außerdem gibt es noch ein Whirlpool im Freien.

Durch die großzügige Solaranlage wird genügend Strom erzeugt um den ganzen Stromverbrauch des Hausse abzudecken und noch darüberhinaus Strom ins Netzt einzuspeisen.

Die Heizung erfolgt mit einem modernen Pelletsofen, Warmwasser kann über Vakuumröhren am Dach aufgeheizt werden oder alternativ mit einem modernen Brennwertgerät.

Das ganze Haus ist vollklimatisiert.

Die Liegenschaft teilt sich wie folgt auf:

EG 

* Hallenbad mit Wellnessbereich, Dusche, Wc, Ruheraum und Teeküche.
* Windfang
* Veranda
* Abstellraum mit Waschmaschine, Wirtschaftsraum
* Garderobe
* Abstellraum
* Badezimmer
* Küche
* WC
* Kabinett
* Wohnzimmer
* Schlafzimmer
* Lager
* Garage
* Vorplatz(wurde mit einem Rolltorausgestatten)
* Carport für mindestens 2 Fahrzeuge mit Wallbox
* Grillplatz
* Garten

OG

* Vorraum
* WC
* Badezimmer mit Dusche und Badewanne
* Schlafzimmer mit begehbarem Schrank
* Kinderzimmer
* Küche 
* Esszimmer
* Wohnzimmer 

KG

* Vorraum
* Technikraum
* Heizraum
* Abstellraum
* Büro/Abstellfläche

für weitere Fragen stehe ich Ihnen gerne jederzeit zur Verfügung.

mfg Julian Obertscheider

 

„Ihr Weg zum besten Immobilienkredit – vergleichen, sparen, finanzieren. Jetzt anfragen bei unserem Finanzierungspartner Alexander Schulze unter+4369917260427oder alexander.schulze@investnest.at.“

Jetzt Wohnkredit sichern

Ihr Ansprechpartner

Julian Obertscheider

Herr Julian Obertscheider

Tel.:
+43 664 181 73 46

j.obertscheider@friends-immobilien.at

Friends Immobilien GmbH

Wiener Straße 127
2352 Gumpoldskirchen

Weitere interessante Immobilien

DAS GUTSCHI – TOWNHOUSE EH 3

ImmoNr.
400008_1
Objektart
Haus
Objekttyp
Stadthaus
Vermarktungsart
Kauf
PLZ
2352
Ort
Gumpoldskirchen
Anzahl Zimmer
6
Anzahl Schlafzimmer
3
Wohnfläche
214 m²
Kaufpreis
1.450.000,00 €

DAS GUTSCHI – TOWNHOUSE EH2

ImmoNr.
400008_2
Objektart
Haus
Objekttyp
Stadthaus
Vermarktungsart
Kauf
PLZ
2352
Ort
Gumpoldskirchen
Anzahl Zimmer
6
Anzahl Schlafzimmer
4
Wohnfläche
219 m²
Kaufpreis
1.650.000,00 €

DAS GUTSCHI – STADTHAUS EH1

ImmoNr.
400008_3
Objektart
Haus
Objekttyp
Stadthaus
Vermarktungsart
Kauf
PLZ
2352
Ort
Gumpoldskirchen
Anzahl Zimmer
5
Anzahl Schlafzimmer
3
Wohnfläche
200 m²
Kaufpreis
1.250.000,00 €

Mehrfamilienhaus mit Garten

ImmoNr.
1870/310423
Objektart
Haus
Objekttyp
Mehrfamilienhaus
Vermarktungsart
Kauf
PLZ
2522
Ort
Oberwaltersdorf
Anzahl Zimmer
10
Grundstücksgröße
1.210 m²
Wohnfläche
280 m²
Kaufpreis
849.000,00 €

12 Zimmer Haus mit Geschäftslokal auf 948 m2 Grundstück

ImmoNr.
1870/310543
Objektart
Haus
Objekttyp
Mehrfamilienhaus
Vermarktungsart
Kauf
PLZ
2500
Ort
Baden
Anzahl Zimmer
12
Grundstücksgröße
948 m²
Wohnfläche
319 m²
Kaufpreis
885.000,00 €