Mehr anzeigen zum Thema Beschreibung
Beschreibung
Das Reihenhaus wurde im Jahr 2001 erbaut und bietet eine Grundstücksfläche von ca. 350 m², 102 m² Wohnfläche sowie 51 m² Keller.
Es teilt sich wie folgt auf:
Erdgeschoss:
– Wohnzimmer 33,62 m²
– moderne Küche 8,16 m²
– separates WC
– Vorzimmer 7,59 m²
Dachgeschoss:
– Zimmer 1 13,20 m²
– Zimmer 2 14,15 m²
– Zimmer 3 12,86 m²
– Badezimmer 6,42 m²
Keller:
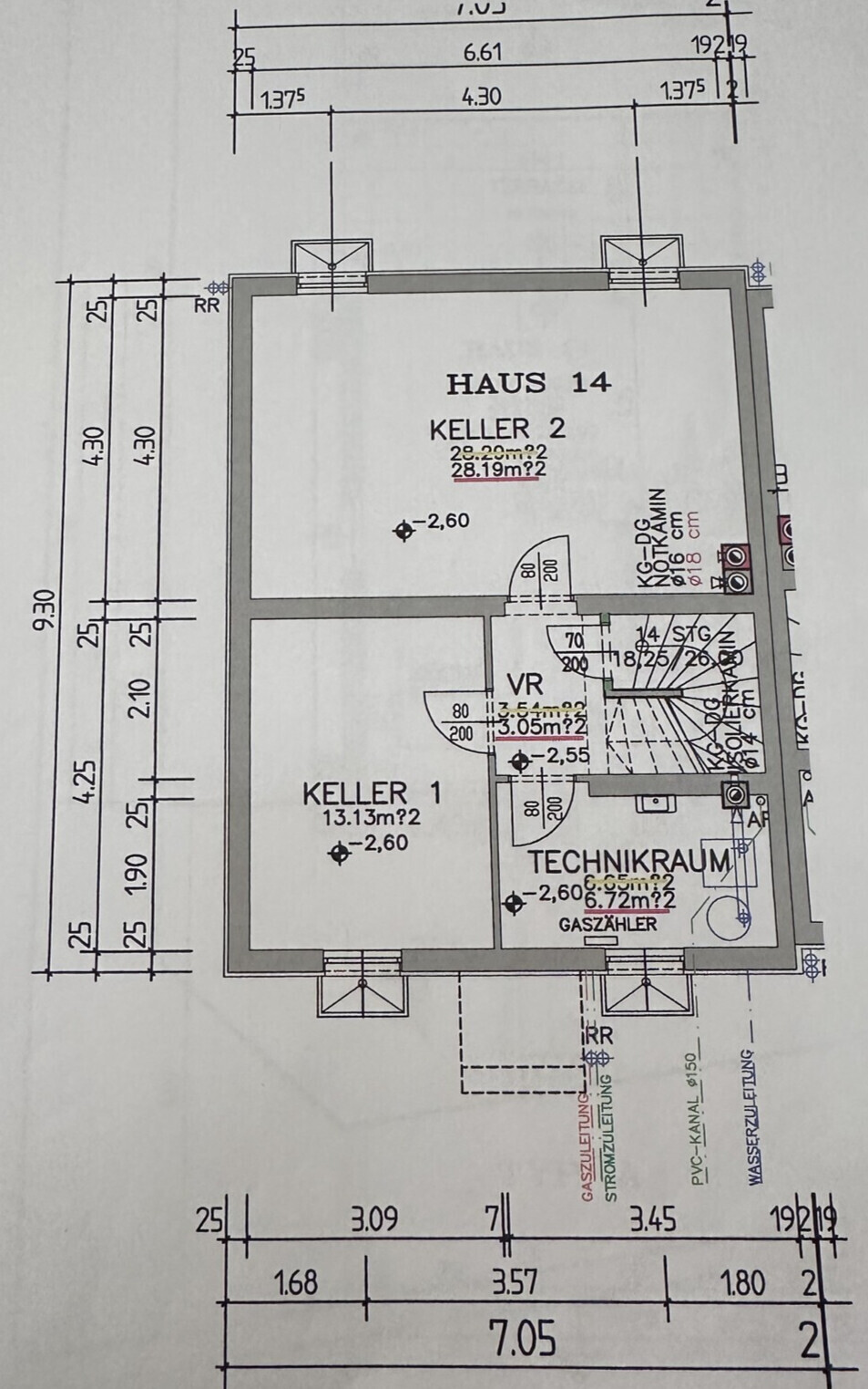
– Zimmer 1 28,19 m²
– Zimmer 2 13,13 m² mit Sauna
– Technikraum 6,72 m² mit Waschmaschinenanschluss
Außenanlagen:
– Garten 205 m²
– Vorgarten 43 m²
– überdachte Terrasse 20,88 m²
– Pool
– Gartenhütte
– KFZ-Außenstellplatz 12,50 m²
– KFZ-Garage 15,96 m²
Im Wohnzimmer wurde der Parkett frisch geschliffen und lackiert. Die Küche wurde 2021 neu errichtet. Der Keller wurde 2006 zu einem Hobbykeller mit Fußbodenheizung ausgebaut.
Das Haus steht ab März 2026 zur Verfügung. (Früher eventuell nach Vereinbarung)
Eine Wohnbauförderung in Höhe von € 11.975,81 ist per 01.08.2025 noch offen und zu übernehmen. Diese ist bereits im Kaufpreis enthalten und wird monatlichen mit den Betriebskosten abgerechnet. Ab 01.02.2027 beträgt die monatliche Rate € 199,60. Die letzte Rate ist am 01.02.2031 fällig.
Es teilt sich wie folgt auf:
Erdgeschoss:
– Wohnzimmer 33,62 m²
– moderne Küche 8,16 m²
– separates WC
– Vorzimmer 7,59 m²
Dachgeschoss:
– Zimmer 1 13,20 m²
– Zimmer 2 14,15 m²
– Zimmer 3 12,86 m²
– Badezimmer 6,42 m²
Keller:
– Zimmer 1 28,19 m²
– Zimmer 2 13,13 m² mit Sauna
– Technikraum 6,72 m² mit Waschmaschinenanschluss
Außenanlagen:
– Garten 205 m²
– Vorgarten 43 m²
– überdachte Terrasse 20,88 m²
– Pool
– Gartenhütte
– KFZ-Außenstellplatz 12,50 m²
– KFZ-Garage 15,96 m²
Im Wohnzimmer wurde der Parkett frisch geschliffen und lackiert. Die Küche wurde 2021 neu errichtet. Der Keller wurde 2006 zu einem Hobbykeller mit Fußbodenheizung ausgebaut.
Das Haus steht ab März 2026 zur Verfügung. (Früher eventuell nach Vereinbarung)
Eine Wohnbauförderung in Höhe von € 11.975,81 ist per 01.08.2025 noch offen und zu übernehmen. Diese ist bereits im Kaufpreis enthalten und wird monatlichen mit den Betriebskosten abgerechnet. Ab 01.02.2027 beträgt die monatliche Rate € 199,60. Die letzte Rate ist am 01.02.2031 fällig.
Mehr anzeigen zum Thema Ausstattung Beschreibung
Ausstattung Beschreibung
– Terrasse
– Garten
– Swimmingpool
– Sauna
– Keller
– Solaranlage
– Kamin
– Klimaanlage
– Stellplatz im Freien
– Garage mit E-Ladestation
– Garten
– Swimmingpool
– Sauna
– Keller
– Solaranlage
– Kamin
– Klimaanlage
– Stellplatz im Freien
– Garage mit E-Ladestation
Mehr anzeigen zum Thema Lage
Lage
Die Lage bietet eine hervorragende Infrastruktur und nahezu alle wichtigen Einrichtungen des täglichen Bedarfs sind bequem erreichbar. Das Haus ist 5-8 Min zu Fuß vom Leobersdorfer Bahnhof entfernt.
Eltern werden die Nähe zu Bildungseinrichtungen zu schätzen wissen, denn sowohl ein Kindergarten als auch die Volksschule liegen lediglich ein paar Gehminuten entfernt.
Die Autobahnanschlussstelle ist lediglich ca. 1 Kilometer entfernt, was eine zügige Anbindung an das Straßenverkehrsnetz bietet.
Kottingbrunn selbst ist geprägt von einem charmanten Ortskern und einer landschaftlich reizvollen Umgebung, die zu Spaziergängen und Freizeitaktivitäten im Freien einlädt. Hier wohnen Sie in einer ruhigen Oase mit gleichzeitig perfekter Anbindung an das städtische Leben.
Eltern werden die Nähe zu Bildungseinrichtungen zu schätzen wissen, denn sowohl ein Kindergarten als auch die Volksschule liegen lediglich ein paar Gehminuten entfernt.
Die Autobahnanschlussstelle ist lediglich ca. 1 Kilometer entfernt, was eine zügige Anbindung an das Straßenverkehrsnetz bietet.
Kottingbrunn selbst ist geprägt von einem charmanten Ortskern und einer landschaftlich reizvollen Umgebung, die zu Spaziergängen und Freizeitaktivitäten im Freien einlädt. Hier wohnen Sie in einer ruhigen Oase mit gleichzeitig perfekter Anbindung an das städtische Leben.
Mehr anzeigen zum Thema Sonstige Angaben
Sonstige Angaben
Wir weisen darauf hin, dass zwischen dem Vermittler und dem Auftraggeber ein familiäres oder wirtschaftliches Naheverhältnis besteht.
Der Vermittler ist als Doppelmakler tätig.
„Ihr Weg zum besten Immobilienkredit – vergleichen, sparen, finanzieren. Jetzt anfragen bei unserem Finanzierungspartner Alexander Schulze unter +43 699 17260427 oder alexander.schulze@investnest.at.“
Der Vermittler ist als Doppelmakler tätig.
„Ihr Weg zum besten Immobilienkredit – vergleichen, sparen, finanzieren. Jetzt anfragen bei unserem Finanzierungspartner Alexander Schulze unter +43 699 17260427 oder alexander.schulze@investnest.at.“
Mehr anzeigen zum Thema Sonstige Angaben
Energieausweis
- Klasse HWB
- C
- HWB
- 82,6 kWh/(m²a)
- Klasse fGEE
- C
- fGEE
- 1,6
Ihre Ansprechpartnerin
Frau Laura Reiter
- Tel.:
- +43 664 390 11 79
l.reiter@friends-immobilien.at
next generation friends immobilien GmbH
Wiener Straße 127
2352 Gumpoldskirchen