Zur Navigation wechseln Zum Inhalt wechseln Zum Footer wechseln
Bildschirmfoto 2025-10-09 um 13.41.15

Bewilligtes Bauprojekt mit 4 Häusern

ImmoNr.
400118
Objektart
Grundstück
Vermarktungsart
Kauf
Grundstücksgröße
763 m²
Balkon
Nein
Terrasse
Nein
Barrierefrei
Nein
Kaufpreis
650.000,00 €
Provision
3% des Kaufpreises zzgl. 20% USt
Loggia
Nein
Mehr anzeigen zum Thema Beschreibung

Beschreibung

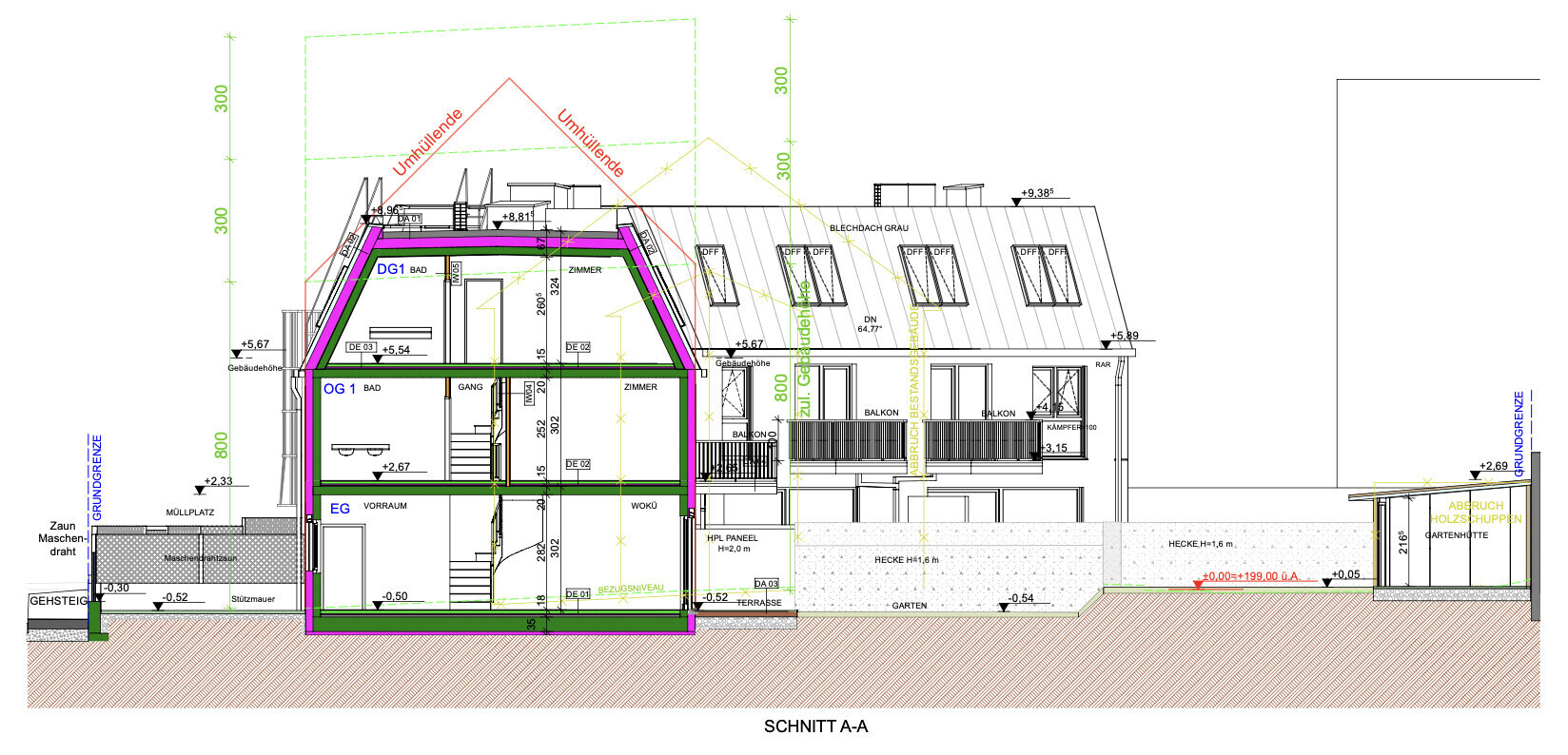
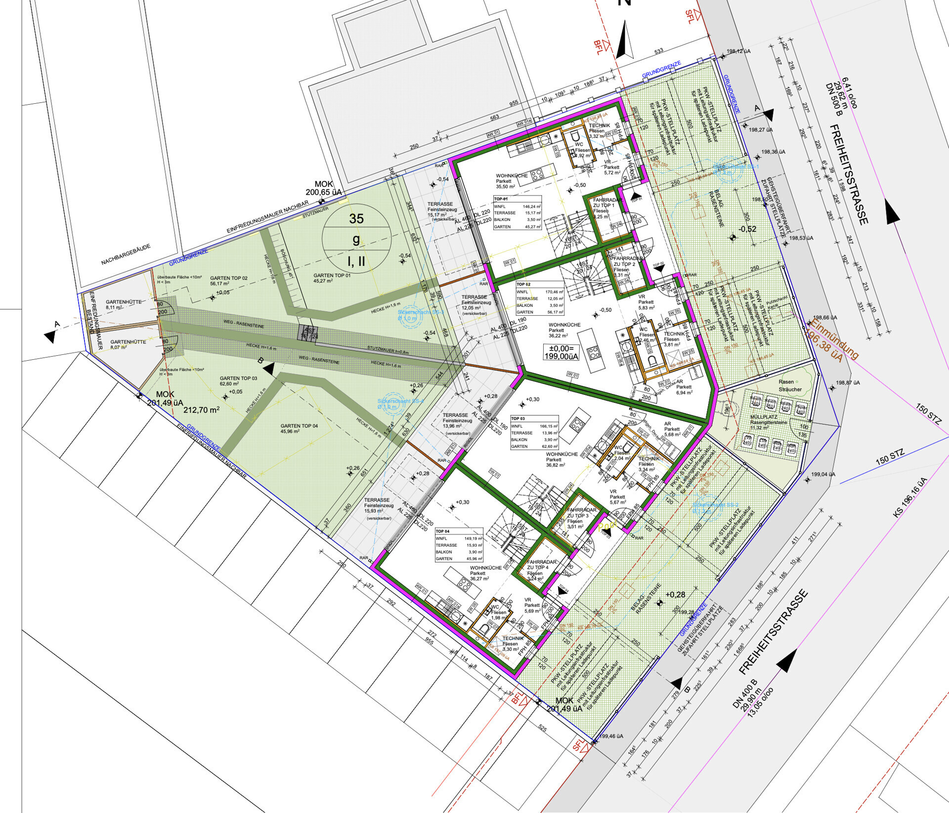
Bewilligtes Bauprojekt mit 4 modernen Häusern



Zum Verkauf gelangt ein 763 m2 großes Baugrundstück mit genehmigter Baubewilligung für 4 moderne Häuser mit gesamt 670 m2 Wohnfläche, Gärten und 8 Stellplätze.

Flächenauftstellung:

Top 1: 154,92 m2
Top 2: 180,51 m2
Top 3: 175,90 m2
Top 4: 158,19 m2

Gesamt: 669,52 m2

für weiter Fragen und Informationen stehe ich Ihnen gerne jederzeit zur Verfügung.

mfg Julian Obertscheider

Ihr Ansprechpartner

Julian Obertscheider

Herr Julian Obertscheider

Tel.:
+43 664 181 73 46

j.obertscheider@friends-immobilien.at

Friends Immobilien GmbH

Wiener Straße 127
2352 Gumpoldskirchen

Weitere interessante Immobilien

BAUTRÄGER AUFGEPASST!!!

ImmoNr.
1870/309361
Objektart
Grundstück
Objekttyp
Wohnen
Vermarktungsart
Kauf
PLZ
2331
Ort
Vösendorf
Grundstücksgröße
1.059 m²
Kaufpreis
890.000,00 €

SÜDSEITIGES BAUGRUNDSTÜCK Bauklasse II

ImmoNr.
1870/310477
Objektart
Grundstück
Objekttyp
Wohnen
Vermarktungsart
Kauf
PLZ
2353
Ort
Guntramsdorf
Grundstücksgröße
600 m²
Kaufpreis
500.000,00 €